方案展示
設計說明
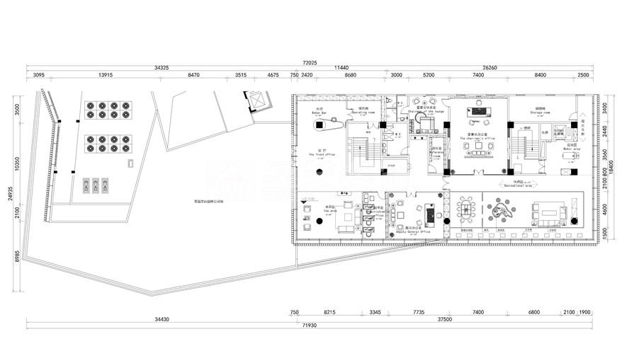
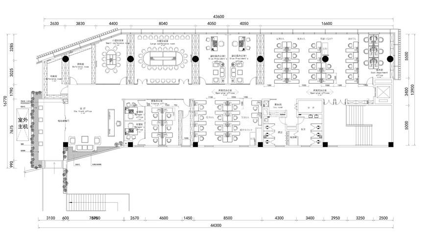
國豐源集團是一家上市公司,現代簡潔的辦公風格,OFFICE總面積1500平方,按照甲方設計要求分區明確,企業文化體現明顯,實用性更強。
[展開]-
星藝設計師的其它設計案例
-
現代風格的其它設計案例
關注我們
分享到
微信

立即預約
在線咨詢
在線客服
公安部備案號 44010602004978號