牙科診所|500㎡禪意詫寂風,與溫柔相逢,塑造至簡之美!
2022-03-11 11:29:37
繁與簡の共創
Complexity and simplicity
簡生繁,繁于簡。每個創新者,都在創造一個全新的生活方式;那該怎么從簡單的內容中跳脫出來呢?是設計,是質感,是別出心裁,也是不同文化的碰撞沖擊與融合。
外觀空間結構
SPATIAL STRUCTURE ANALYSIS
主空間設計分析與定向
MAIN SPACE DESIGN POSITION
診室跨生活方式——精致、時尚、優雅、禪意
材質及顏色分析:米咖色系,禪意詫寂風、多種木紋材質紋理襯托、大理石原色點綴。
Case/rendering
一樓大廳
禪 ▋棲居靜謐
Dwell in silence

一樓過道
過道處設有衛生間,洗手臺,便捷舒適。墻體與玻璃門都有運用大面積枯山水紋路,詮釋深刻的禪宗美學,從而實現“無水而喻水”的效果,強化細節體現。


一樓兒童區/一樓兒童診室
趣 ▋繽紛奇遇
It’s a wonderful adventure
幸運的人用童年治愈一生,不幸的人用一生治愈童年。孩子的世界總是五彩繽紛的,走進兒童區像是誤入了動物世界,把人拉回一個又一個稚嫩時光,貓和老鼠,維尼熊,布朗熊......哪個是你兒時最愛呢?
一樓樓梯口
如果說高級灰是設計師鐘愛的高端雅致代表色,那黑色就是沉穩霸氣的經典色,當兩者結合產生強烈的視覺沖擊,碰撞出純凈的美感。
一樓宣教室
宣教室也能作為等候區,玻璃內嵌展示柜時尚精致,墨綠色桌椅設計感十足,一邊是大人的休閑區,一邊是孩子的玩耍區,功能明確細心。
二樓大廳
錦 ▋歲月靜好
The years are quiet
二樓大廳兩根圓柱讓整體空間有了重心, 搭配透明玻璃圍欄互補兼容。水晶吊燈上的蝴蝶栩栩如生,與遠處的圓窗形成絕美的畫面,像是進入愛麗絲仙境般夢幻閃亮。



在多種木紋材質紋理襯托下,休閑區呈現出寧靜祥和的景象。風和日麗的下午,一杯茶,一份陽光,足矣。

柔和米色,乘以神秘黑色,是一種極顯氣質的絕佳配色方案,加之以細致的紋路彰顯出非凡的品質。

二樓過道間
半月形鏡面配上柔和的燈光,似乎是摘下了夜空中的明月,熠熠生輝。

三樓過道間
實 ▋主題演繹
Thematic interpretation
時尚用黑白定義永恒,構圖用黑白創造真實。白色墻面與黑色線條交織,從視覺上豐富空間層次,隱形門設計把空間主題演繹的明晰而生動。

三樓種植室/三樓正畸室
不同功能的診室強調的是實用性與舒適性。牙科ct室用高級灰+白打造靜謐的獨立空間;種植室和正畸室增加了主機和鍵盤位區域,主要設備也都正對窗臺,一縷朝陽落下,整個功能區都呈現出柔和治愈的色彩,忐忑不安的心也慢慢平靜下來。

樓vip診室①/三樓vip診室②
vip診室劃分出額外的休息空間,放置按摩椅與木桌,屏風采用格子木架拼接大理石底座,用簡潔的設計豐富功能的可選性,深淺有度的配色更是令人身心舒暢。

三樓清洗室/三樓打包消毒室
清洗室和消毒室配備了足夠的儲存空間與洗手臺,劃分精準。百葉窗設計使空間更為通透,滿足通風條件。
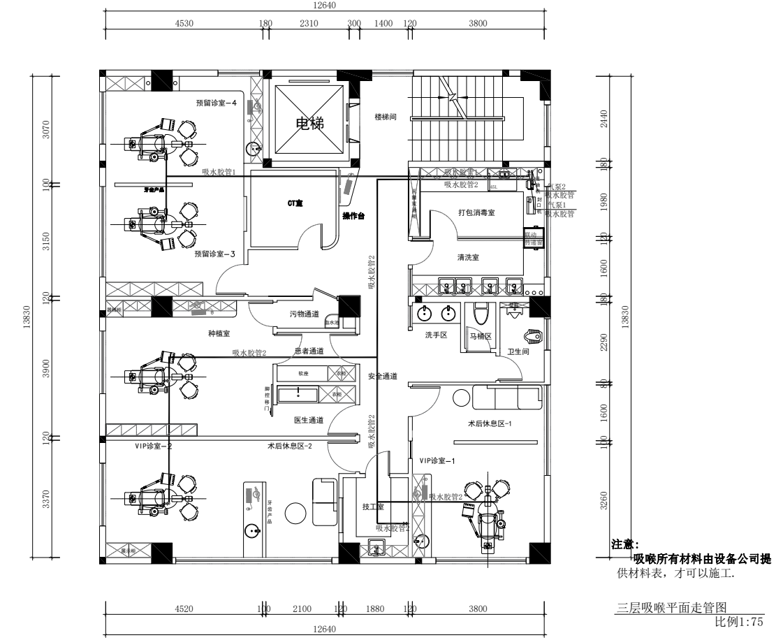
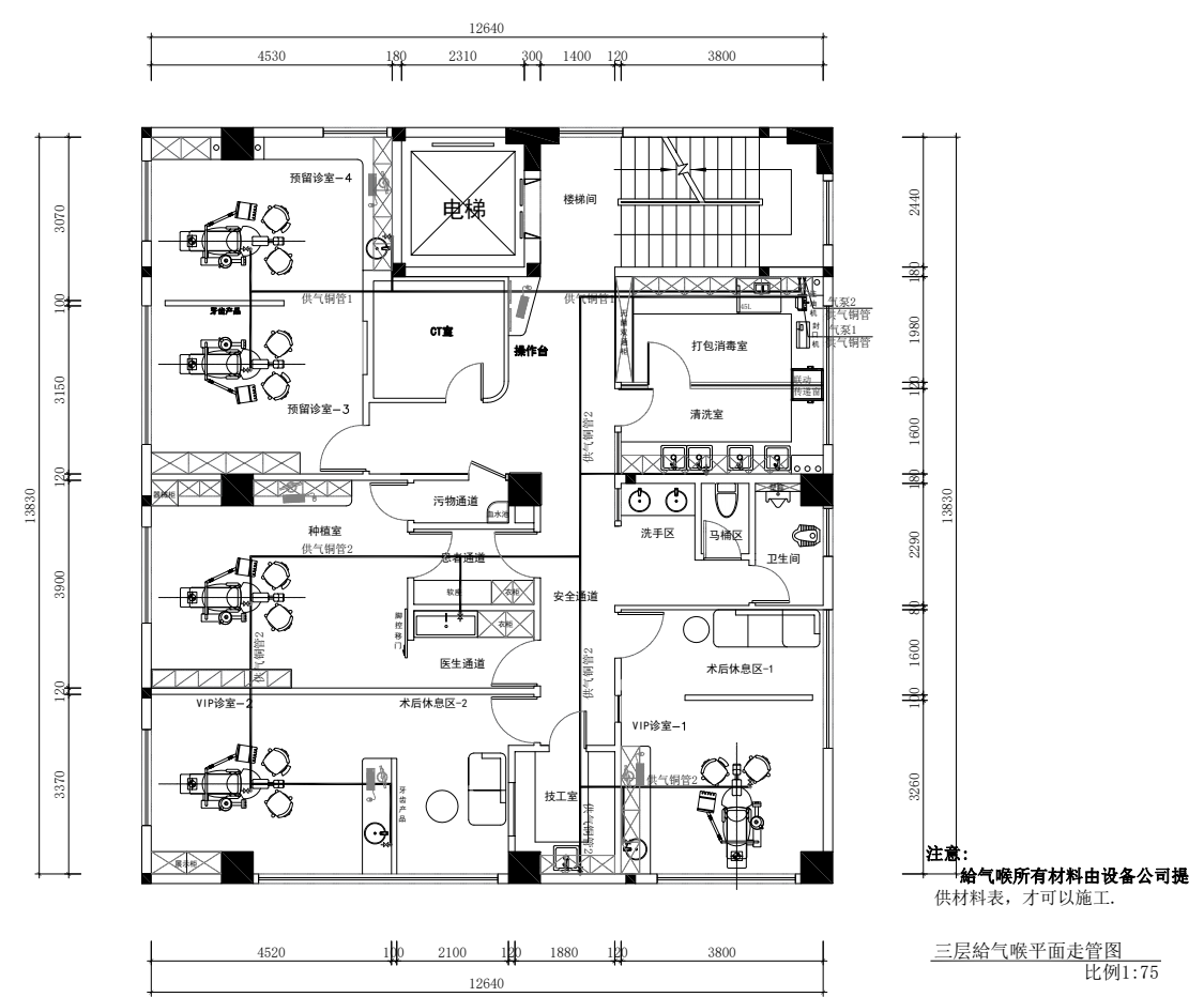
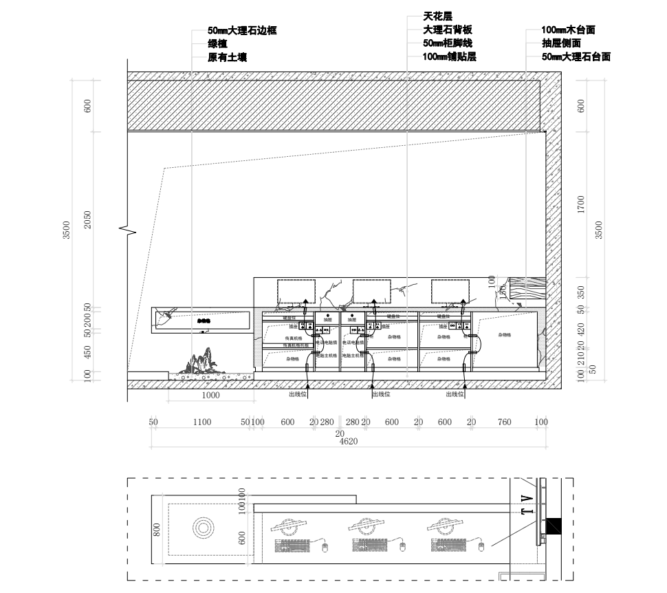
施工圖
Construction drawing





主案設計丨樹濤
Main case design/shu tao
項目面積丨500㎡
Project area/500㎡
風格傾向丨禪意詫寂 現代低奢
Stylistic tendency/Modern, low luxury
項目地址丨汕頭口腔診所
Project address/Dental Clinic
主要材質丨多種木紋材質 大理石
Main material/Wood grain, marble
關注我們
在線客服
公安部備案號 44010602004978號